When embarking on complex construction projects, particularly those involving curtain walls and façades, precision cannot be overstated. Every detail must be accounted for, ensuring a seamless alignment of design, functionality, and execution. This is where glazing shop drawings take center stage. Often referred to as the blueprint of the construction phase, these technical documents provide an indispensable guide for contractors, architects, and engineers alike.
This blog dives into the role glazing shop drawings services play in curtain wall and façade projects, outlining what they contain, why accuracy matters, and the significant benefits they bring to the table.
What Are Glazing Shop Drawings?
At their core, glazing shop drawings are detailed, technical documents outlining the design, specification, and installation methodologies for glass and glazing components in a construction project. Far more than just diagrams, they serve as the visual and instructional roadmap for the assembly and placement of curtain walls, windows, and other façade systems.
Glazing shop drawings interpret the architect’s design intent into precise dimensions, materials, and structural details necessary for execution. They bridge the gap between conceptual designs and on-site construction plans, ensuring that not a single misstep occurs during the installation process.
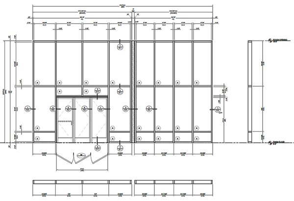
What Do Glazing Shop Drawings Include?
Glazing shop drawings are exhaustive in detail, encompassing every possible aspect needed for a successful installation. Here’s a closer look at key components included in these drawings:
1. Dimensions and Layouts
- Exact measurements for individual panels, frames, and glazing units.
- Spacing, alignment, and overall system placement details.
2. Material and Component Specifications
- Detailed descriptions of glass types, coatings, frames, and other assembly components.
- Information on sealants, anchors, and fasteners used for installation.
3. Cross-Sections and Elevations
- Detailed internal and external views that highlight assembly layers.
- Simplified 2D elevations to give an overall appearance overview.
4. Structural and Performance Data
- Wind load and thermal performance requirements.
- Tolerances, stresses, and deflection criteria for the materials used.
5. Connection and Anchor Details
- Precise instructions on how panels, mullions, transoms, and brackets should connect.
- Guidelines for integrating the system with building structures.
By providing such granular documentation, glazing shop drawings empower project teams to translate envisioned designs into flawlessly executed structures.
Why Is Accuracy in Glazing Shop Drawings Essential?
A single error in a glazing shop drawing can snowball into significant project setbacks. Accuracy is not just a preference; it’s an absolute necessity for maintaining efficiency, avoiding costly errors, and ensuring structural integrity.
Potential Consequences of Errors:
- Project Delays
Incorrect dimensions or unclear specifications disrupt timelines, requiring time-consuming corrections.
- Wasted Materials
Manufacturing components based on flawed shop drawings leads to waste and increased project costs.
- Safety Risks
Faulty designs may compromise a building’s structural stability and safety, particularly in projects exposed to high wind loads or seismic activity.
- Misaligned Architect-Contractor Expectations
Discrepancies between the architect’s vision and the contractor’s execution can lead to disputes and costly rework.
Accurate shop drawings mitigate these risks, providing all stakeholders with a unified version of the project’s technical blueprint.
Benefits of Using Glazing Shop Drawings
The importance of glazing shop drawings becomes evident when you consider their clear benefits. Here’s why they are indispensable tools in curtain wall and façade projects:
1. Reduced Errors and Rework
With precise details outlined ahead of time, shop drawings minimize the risk of errors during fabrication and installation. By addressing potential problems during the design stage, costly reworks and material wastage are significantly reduced.
2. Enhanced Communication Between Teams
Glazing shop drawings act as a universal reference point, ensuring clarity between architects, engineers, glazing contractors, and construction teams. Everyone operates on the same page, reducing the chances of miscommunication and ensuring consistent workflows.
3. Improved Compliance and Quality Assurance
From performance criteria like wind-load resistance to alignment with local building codes, shop drawings ensure that every detail adheres to the required standards. This not only guarantees quality but also adds a layer of assurance for clients and stakeholders.
4. Streamlined Project Timelines
When shop drawings eliminate ambiguity, teams can move forward with confidence, minimizing delays and keeping the project on track. Components arrive prefabricated, mistake-free, and ready for installation, reducing time spent on-site.
5. Facilitates Coordination
Glazing shop drawings integrate perfectly into other project documentation. They allow proper coordination with structural details, MEP (Mechanical, Electrical, and Plumbing) designs, and other interdependent components of the building.
The Key Role of Glazing Shop Drawings in Your Projects
Glazing shop drawings are far more than just technical documents; they are the backbone of any project involving glass façade systems or curtain walls. They ensure architects’ creative visions are realized to their full potential while supporting glazing contractors and façade engineers with detailed installation roadmaps.
From improving communication to eliminating costly mistakes, these drawings are fundamental to every stage of the process—from design concept to final installation.
Need help getting started with your next façade project? Whether you need guidance on creating accurate shop drawings or optimizing workflows, our team of experts is here to help.
Comments